Cor 70 CC16 RPT
Cor 70 CC16 RPT
Sistema de janela batente de 70 mm, cuja potente capacidade de isolamento permite conseguir um coeficiente de transmissão térmica desde 0.8 W/m²K, obtido graças à perfeita conjunção e desenho de perfilaria de alumínio, varetas de poliamida tubulares de 35 mm, juntas de estanquidade tubulares de E.P.D.M. e um sistema de espuma de poliolefina colocada perimetralmente no bastidor do vidro. Possibilidade de folhas rectas e chanfreadas e de bites rectos, chanfreados e curvos. A sua grande capacidade de enchimento, até 58 mm, confere a este sistema umas excelentes prestações acústicas e térmicas ao permitir a utilização de vidros de grande espessura e eficiência energética.
- Isolamento acústico
- Possibilidades de abertura
- Secções / Espessura perfilaria
- Dimensões e pesos máximos
- Categorias em banco de ensaios
- Acabamentos
- Coeficiente térmico / Zonas RCCTE
Máximo envidraçamento: 58 mm.  
Máximo isolamento acústico Rw=46 dB
Abertura interior: 
Batente, oscilo-batente, harmónio, oscilo-paralela e basculante. 
Abertura exterior:
Batente, projectante-deslizante.
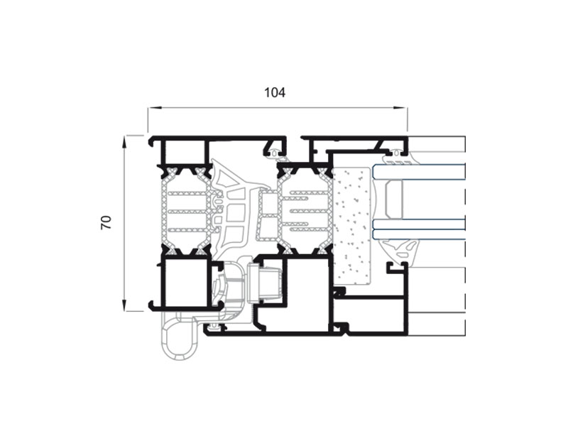
SECÇÕES
· Aro fixo – 70 mm.
· Folha – 75 mm.  
ESPESSURA PERFILARIA
Janela – 1,5 mm.
Porta – 1,7 mm.  
Largura vareta poliamida: 35 mm.
DIMENSÕES MÁXIMAS
Largura(L)= 1.600 mm.
Altura(H)= 2.800 mm. 
*janela 1 folha, oscilo-batente 
Peso máximo / folha 150 Kg. 
Consultar peso e dimensões máximos para outras tipologias.
Permeabilidade ao ar (EN 12207:2000):
Classe 4 
Estanquidade à água (EN 12208:2000):
Classe E1500 
Resistência ao vento (EN 12210:2000):
Classe C5 
Ensaio de referência janela 1, 23 x 1,48 m. Duas folhas.
· Posibilidade bi-cor
· Lacagem a cores (RAL, salpicados e rugosos)
· Lacagem imitação madeira
· Lacagem anti-bacteriana
· Anodizado
Uw desde 0,8 (W/m²K) 
Consultar tipologia, dimensão e vidro
Zonas de cumprimento do RCCTE* I1 I2 I3
*Em função do coeficiente de transmissão térmica do vidro
 
                  
